Etude complète de conception

L’étude complète de conception s’adresse aux projets d’aménagement ou de rénovation nécessitant une réflexion approfondie et un accompagnement global.
Elle permet de concevoir un projet sur mesure, cohérent et réalisable, tout en vous guidant à chaque étape, de la définition de vos besoins jusqu’à la préparation des travaux. Votre projet clé en main.

1- Brief client & analyse de l’existant

Cette première étape pose les bases du projet. Elle comprend :

  • l’échange autour de vos besoins, de vos envies et de votre mode de vie
  • l’analyse de l’existant et la prise de côtes
  • une première réflexion esthétique pour comprendre l’ambiance recherchée

L’objectif est de définir clairement vos attentes, vos contraintes et les priorités du projet.

2-Cahier des charges & intention de projet

À partir du brief, je réalise un cahier des charges détaillé accompagné d’une planche d’ambiance.

Cette étape permet de valider ensemble l’univers esthétique, les grandes orientations du projet et de s’assurer que nous partons dans la bonne direction avant d’entrer dans la phase de conception.

3-APS (Avant-Projet Sommaire)

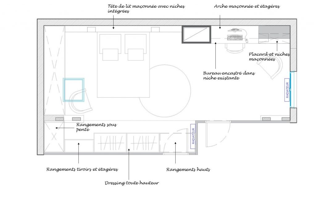
Je vous propose 2 à 3 solutions d’agencement adaptées à votre espace et à vos besoins.
Cette phase inclut :

  • des plans d’aménagement
  • des propositions de matériaux, de mobilier et d’ambiances
  • des vues 3D réalistes pour vous aider à vous projeter

Nous échangeons autant que nécessaire afin d’ajuster le projet et d’aboutir à une solution qui vous correspond pleinement.

4- APD (Avant-Projet Définitif)

Une fois la version définitive validée, le projet est développé dans le détail.
Cette phase comprend :

  • l’ensemble des plans techniques nécessaires à la réalisation des travaux
  • la consultation des entreprises
  • le chiffrage du projet

Cette phase peut inclure la réalisation des démarches administratives nécessaires au projet, telles que la déclaration préalable de travaux.

Je prépare un dossier complet, clair et exploitable par les artisans.

5-Accompagnement dans le choix des entreprises

À l’issue de l’étude, vous disposez de tous les éléments pour lancer les travaux sereinement.
Je vous accompagne dans la lecture et la comparaison des devis, et vous aide à sélectionner l’entreprise la plus adaptée à votre projet.

Une étude pensée pour avancer en toute confiance

Cette étude de conception complète vous permet de sécuriser votre projet, de maîtriser les choix esthétiques et techniques, et d’aborder les travaux avec une vision claire et réaliste.

Tarif:

L’étude de conception complète est proposée uniquement sur devis, afin de s’adapter au plus juste à votre projet.
Le tarif est défini en fonction de plusieurs critères, notamment la surface, le type de pièce, la complexité du projet et le niveau d’accompagnement souhaité.

Quelques exemples…